PNEUMATIC PERSONNEL ELEVATED WORK PLATFORMS FOR SPRAY BOOTHS

AirStroke – pneumatic three axis paint platform for large sized booths
The AirStroke paint platform is a modern and advanced solution for professional paint booths. With the ability to move in three axes – up/down, in/out and along the booth – the AirStroke paint platform provides full mobility and freedom to work on large parts. The unit is mounted on the wall, without contact with the floor, which keeps the floor clean and makes it easier to organize the workspace.
Why AirStroke?
The AirStroke pneumatic platform has been developed for applications in large paint booths, where maximum accessibility to all surfaces of workpieces is essential. It proves ideal for preparatory, overhaul and painting work. Its use significantly increases the efficiency of processes, reduces working time and improves the quality of the finish.
AIR-STROKE WALL MAN PNEUMATIC PLATFORMS FOR SPRAY BOOTHS
The G-Lift personal pneumatic man lift, manufactured by the Polish company G-Lift and is distributed in Australia by their exclusive agent Truflow Spray Booths (Aust) Pty Ltd.
The Pneumatic G-Lift Wall Man platform is specifically engineered to operate safely within spray booths (for painting) and preparation booths across various industrial sectors where explosive gases and fumes may be present (ATEX, IECEX -classified environments).

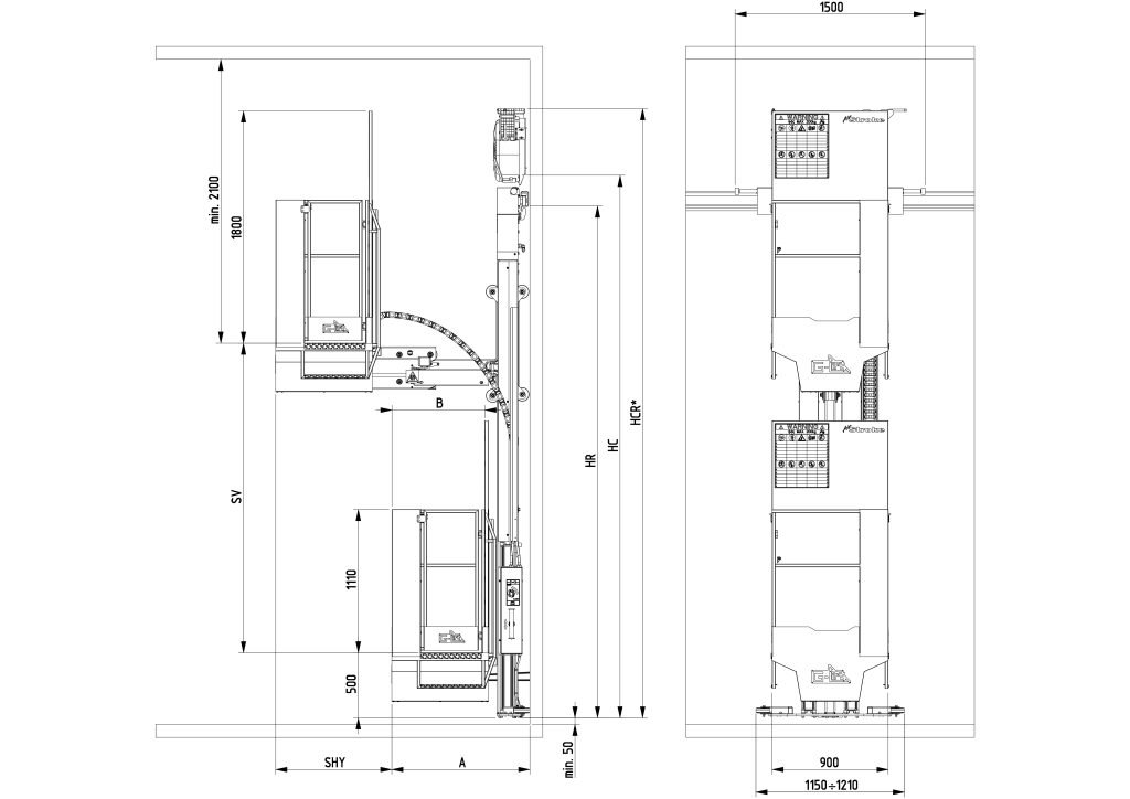
| SV | SHY | HR | HC | HCR* | B | A | |
| AirStroke MINI | 2000÷6000 | 600 | SV+1600 | SV+1800 | SV+2300 | 930 | 600 |
| AirStroke MIDI | 2000÷6000 | 900 | SV+1600 | SV+1800 | SV+2300 | 1080 | 750 |
| AirStroke MAXI | 2000÷6000 | 1200 | SV+1600 | SV+1800 | SV+2300 | 1230 | 900 |
| AirStroke MAXI XXL | 2000÷6000 | 1600 | SV+1600 | SV+1800 | SV+2300 | 1430 | 1100 |
Advantages of paint platform AirStroke
- Higher productivity;
- Higher quality of painted surfaces
- Lower production costs
- Low utility cost;
- Short return of investment;
- Long service life;
- improved work safety;
- Easy to keep clean;
- Intuitive control;
- 3-axis movement;
- CE and IECX / ATEX compliance;
- Certificated by Notified Body no. 1433;
Main features of Airstroke



Optional foot controls
Increase ergonomics of operation by allowing users to foot pedal operate the lift, subsequently allowing operators to paint and move the platform simultaneously.
Standard control panel
Intuitive control panel with compressed air connections for tools – convenience of use and easy to use for any painter.
Large platform, self closing door
The large operator workspace (size options available) ensures plenty of space painters. Self closing hinges and lack lock doors provide safety and convienience.
Download Spreadsheet
Download: AS-NZS_Dimensional Drawings
Download : g-lift-airstroke-en
Air Stroke site installations

















